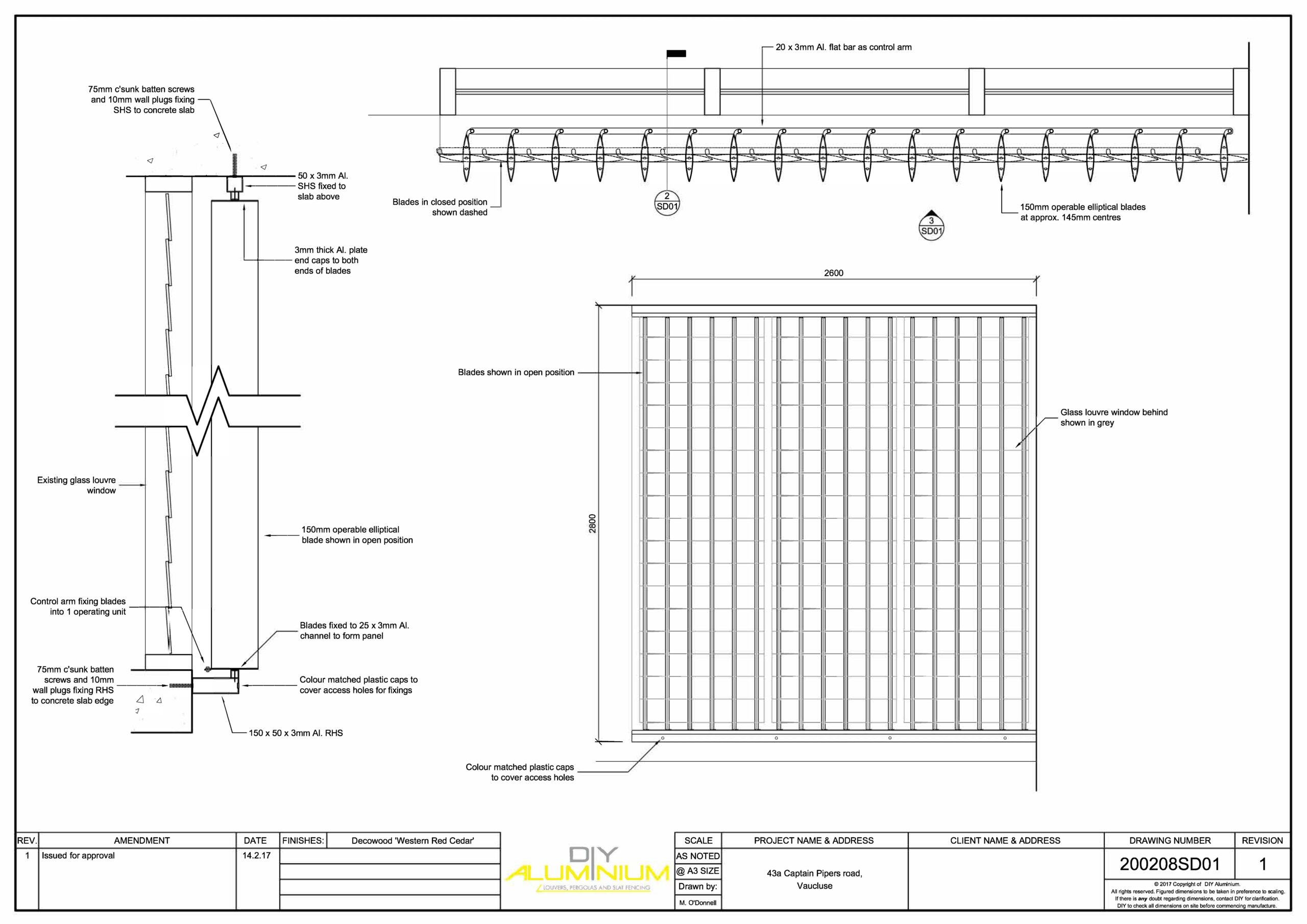
Our Operable 150mm Louvres are our #1 selling product and are great for Residential or Commercial jobs.
- These louvre panels can be made vertically or horizontally and are made with all aluminium parts.
- They’re great for larger openings and for maximising your view!
- And the best part they’re super easy for the DIYer to Install!
Please contact us for a quote or further information.


































